Cloud Zoom small image
蓝调沙龙雅园

名称:蓝调沙龙雅园
可在线通过咨询了解详情
 
通过以下按钮进入下一步
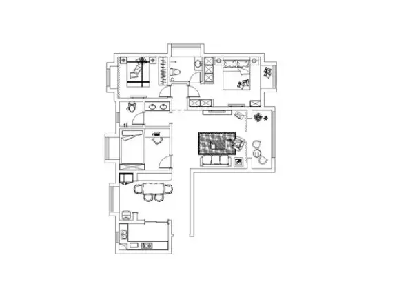
设计说明:项目名称:中冶蓝城设计风格:现代简约施工单位:北京实创装饰公司整体家装:装修一口价家装类型:88理想装工程面积:119平米房屋类型:3居2厅2卫整体报价:92536元房子家庭成员构造是4个人,一对夫妇和两个女儿,整体喜欢现代感前卫但又不繁琐的简约风格

案例详情

卧室作为人休息的地方,自然是最放松的区域,自然要惬意一些
卧室作为人休息的地方,自然是最放松的区域,自然要惬意一些
精美的家具和绿色植物合理搭配,加上宽敞的室内空间和良好采光,营造出舒适的家居气息和自然风情。
精美的家具和绿色植物合理搭配,加上宽敞的室内空间和良好采光,营造出舒适的家居气息和自然风情。
业主强调喜欢现代感强的但又不繁琐的现代风格,定位于黑白灰为主色系。
业主强调喜欢现代感强的但又不繁琐的现代风格,定位于黑白灰为主色系。
书房兼客房现代感前卫但又不繁琐
书房兼客房现代感前卫但又不繁琐
户型图
户型图