Cloud Zoom small image
牛驼温泉孔雀城

名称:牛驼温泉孔雀城
可在线通过咨询了解详情
 
通过以下按钮进入下一步
项目名称:牛驼温泉孔雀城设计风格:欧式施工单位:北京实创装饰公司整体家装:装修一口价家装类型:88理想装工程面积:221平米房屋类型:3居2厅4卫整体报价:180284元简约欧式风格沿袭古典欧式风格的主元素,融入了现代的生活元素。欧式的居室有的不只是豪华大气,更多的是惬意和浪漫。通过完美的典线,精益求精的细节展现欧式风格的完美。

案例详情

跟客厅同步的奢华灯池,精美的水晶吊灯凸显欧式风格,用镜面做餐厅背景,空间感更大气,窗边定制餐边酒柜,使用更合理舒适。
跟客厅同步的奢华灯池,精美的水晶吊灯凸显欧式风格,用镜面做餐厅背景,空间感更大气,窗边定制餐边酒柜,使用更合理舒适。
床头背景用石材收边,配上欧式床和床头柜完美的结合也让人们在享受物 质文明的同时得到了精神上的慰藉,整体搭配散发典雅欧式气息。
床头背景用石材收边,配上欧式床和床头柜完美的结合也让人们在享受物 质文明的同时得到了精神上的慰藉,整体搭配散发典雅欧式气息。
用石材手边 软包装饰电视背景墙,突出欧式风格的奢华大气,一进门的玄关衣帽柜又将视觉空间感扩大了许多。
用石材手边 软包装饰电视背景墙,突出欧式风格的奢华大气,一进门的玄关衣帽柜又将视觉空间感扩大了许多。
窗边定制白色踏踏米,打造了一个简约欧式的休闲区域。简单欧式用简化的手法、现代的材料去追求传统式样的大致轮廓特点。
窗边定制白色踏踏米,打造了一个简约欧式的休闲区域。简单欧式用简化的手法、现代的材料去追求传统式样的大致轮廓特点。
欧式风格强调以华丽的装饰、浓烈的色彩、精美的造型达到雍容华贵的装饰效果。欧式客厅顶部喜用大型灯池,并用华丽的吊灯营造气氛。
欧式风格强调以华丽的装饰、浓烈的色彩、精美的造型达到雍容华贵的装饰效果。欧式客厅顶部喜用大型灯池,并用华丽的吊灯营造气氛。
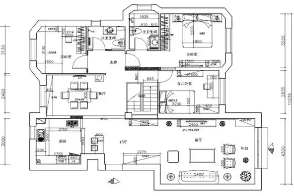
户型图
户型图